Главный офис:

р. Крым, г. Симферополь

Главный офис:

р. Крым, г. Симферополь

ЗАПУСТИТЬ
БОТА-ПОМОЩНИКА
О проекте
Керчь, улица Свердлова
Посмотреть на карте
Цена:
от 7 650 000 руб.
Площадь:
45 - 108 м²
Расстояние до моря:
500 м
Срок сдачи:
Дом сдан
Район:
Керчь
Класс дома:
Бизнес
Материал здания:
Монолитно-кирпичный
Подъезд к дому:
Асфальтная дорога
Тип дома:
Многоквартирный
Паркинг:
Придомовой
Территория:
Закрытая охраняемая
Отопление:
Центральное
Электричество:
Подключено
Канализация:
Центральная
Водоснабжение:
Центральное
Новое качество жизни
500м

до моря

100км

Аэропорт

5км

Крымский мост

5км

ЖД вокзал

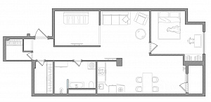
Планировки и цены
При покупке квартиры мы предлагаем
  • Ипотека с выгодой до 300 000 ₽
  • Квартиры со скидками до 200 000 ₽
  • Продажа вашей старой квартиры с выгодой до 200 000 ₽
  • Автобусный тур для клиентов
  • Индивидуальный тур
Cвязаться с отделом продаж
Расположение на карте
Жемчужина Боспора - уникальный жилой комплекс класса комфорт, который расположен в городе Керчь на улице Свердлова в непосредственной близости к центру города.
До площади Ленина можно добраться всего за 5 минут.

Жилой комплекс состоит из 4 восьмиэтажных секций с двухуровневыми квартирами на последних этажах. В комплексе представлен широкий спектр различных планировочных решений. Всего в четырех домах 277 квартир, площадью от 45 до 180 квадратных метров. Высота потолков 3м.
Дома оснащены всей необходимой инженерией.

Подземный паркинг

Под каждым подъездом предусмотрен паркинг, рассчитанный на 113 машино-мест, оснащенный современной вентиляционной системой для вывода выхлопных газов без ущерба для здоровья жильцов.
Коммуникации

Автономное отопление позволит вам самостоятельно регулировать температурный режим в вашей квартире.
Все, что нужно для жизни и отдыха на морском побережье всегда рядом:

Детские дошкольные и образовательные учреждения
Поликлиника и аптеки
Магазины и кафе
Торговые комплексы
Центральная городская площадь, где кипит культурная жизнь Керчи
Детский парк и спортивные площадки у моря
Набережная для променада и любования морскими пейзажами
Чистейшие пляжи Чёрного и Азовского морей.
ЖК «Жемчужина Боспора» - это жилой комплекс, который превзойдет ваши ожидания.
Индивидуальное предложение месяца
Регистрация сделки в МФЦ за наш счет!
Другие новостройки
188 квартир
3 квартал 2025
  • от 37 до 105 м²
  • 4 эт.
  • до моря 500 м
127 663 руб. за м²
ЖК Белый город
Керчь, ул. Колхозная
62 квартиры
4 квартал 2027
  • от 31 до 60 м²
  • 9 эт.
  • до моря 1000 м
189 624 руб. за м²

Купить новостройки в Крыму у моря от FLЭTHOUSE – осознанный выбор!

Если Вы приняли решение купить квартиру в Крыму – обратите внимание на новостройки. Главное преимущество покупки жилья на первичном рынке – отсутствие проблем, которые накапливаются у любой квартиры с возрастом, начиная с износа коммуникаций и заканчивая моральным устареванием планировки. Новостройка подобных недостатков лишена – в ней нет и скрытых дефектов, оставленных прежними жильцами, потому что никаких прежних жильцов не было вовсе. Конечно, лучший вариант – это новостройки с отделкой в Крыму, в такую квартиру можно заезжать сразу после заключения договора купли-продажи и оплаты Вашего нового жилья. Впрочем, если самостоятельный ремонт Вас не пугает или на примете есть хорошая бригада отделочников – можно остановиться и на квартире с черновой отделкой. У этой ситуации тоже есть свои преимущества – Вы сможете создать эксклюзивный дизайн своего жилища, выбирая из всего многообразия современных отелочных материалов. В агентстве FLЭTHOUSE Вы можете приобрести квартиру на первичном рынке как с отделкой, так и без таковой. Мы всегда готовы предложить Вам разнообразные варианты жилья на любой вкус, бюджет и размер семьи, а также однокомнатные, двухкомнатные, трёхкомнатные квартиры под сдачу в аренду.

Недвижимость в Крыму от застройщика: новостройки Симферополя и других районов

Недвижимость в Крыму разнообразна, новостройки появляются сейчас в самых различных районах полуострова. Приведём краткий обзор городов и районов Крыма, наиболее подходящих для постоянного проживания, в которых можно купить новостройку недорого и выгодно. А если Вы уже определились, в каком именно городе или посёлке городского типа хотите жить в одиночку или со своей семьёй – звоните нам прямо сейчас или пишите в онлайн-чат нашему менеджеру. Мы сделаем всё, чтобы подобрать для Вас лучшую квартиру! • Севастополь. Один из крупнейших городов полуострова, логистический центр с развитой инфраструктурой и прямым выходом к морю, город федерального значения, овеянный воинской славой исторических сражений. По мнению некоторых экспертов, лучшие новостройки в Крыму – именно в Севастополе. При этом это достаточно дорогое жильё, стоимость квартир в Севастополе находится на втором месте среди городов Крыма. • Симферополь. Деловой и культурный центр Крыма, столица республики, при этом находящаяся в достаточном удалении от морского побережья, поэтому продажа новостроек здесь более выгодная для покупателей – они дешевле на 30-40%, чем в Севастополе. Приобретение квартиры в Симферополе подойдёт Вам, если Вы не собираетесь ездить на море чаще раза в неделю, а к построению карьеры относитесь серьёзно – возможностей в этом направлении в Симферополе больше всего. • Ялта. Один из туристических центров республики в котором новостройки недорого найти практически невозможно – разве что на стадии котлована. Обычная цена квартиры – в среднем в два раза выше, чем в Севастополе. Однако более высокая стоимость имеет чёткие причины: очень удачное расположение города-курорта, множество культурных, исторических, деловых и развлекательных мест, хорошо развитая инфраструктура и почти идеальный климат. • Евпатория. Также туристический центр, однако иного, санаторного характера. Считается своего рода классической «провинцией у моря» без активной деловой жизни. При этом практически нонсенс – новостройки в Крыму на берегу у моря – по цене удалённого от побережья Симферополя! Если для Вас не так важен высокий ритм жизни, если Вы предпочитаете спокойствие и некоторую удалённость от цивилизации – выбирайте квартиры в новостройках Евпатории. • Алушта. Многие считают именно этот город оптимальным для приобретения в новостройке квартиры у моря, поскольку при хорошей экологии и всех преимуществах курортной зоны он отличается более активной деловой жизнью, чем Ялта и, тем более, Евпатория. При этом уровень цен, конечно, не позволяет отнести данное жильё к категории «недорогие квартиры в новостройках», но до верхних порогов, характерных для Ялты, они сильно не дотягивают. • Феодосия. Несмотря на историческую ценность и древность, этот район Крыма больше ориентирован пока на экскурсионный туризм (с проживанием в других районах) или дачно-провинциальный образ жизни. Однако и здесь происходит постепенная инфраструктурная модернизация, постепенно уровень жизни растёт. Пока здесь можно квартиры купить недорого в новостройках у самого моря – спрос невелик, поэтому и цены доступны (примерно в одной ценовой категории с Евпаторией). Кроме того, в нашем агентстве Вы можете купить новостройку с отделкой в таких населённых пунктах Крыма как Саки, Курпаты, Черноморское, Керчь и других. При звонке или отправке сообщения уточните, есть ли у Вас предпочтения касательно района, в котором Вы хотите купить новостройку в Крыму – мы подберём для Вас все доступные предложения именно в нём. Если же при поиске квартиры в Крыму по району новостройки нет – мы будем ориентироваться на другие индивидуальные параметры запроса. Звоните или отправляйте нам сообщение прямо сейчас – и этим Вы сделаете первый шаг к приобретению новой квартиры на Крымском полуострове!

Новостройки в Крыму от застройщика: цены, ассортимент, порядок заказа

При выборе квартиры в новостройках Крыма цены имеют очень сильное влияние на принятие решения. Мы это отлично понимаем и хотим Вас сориентировать в диапазоне цен – на однушки ценовая вилка составляет от 3 до 10 миллионов рублей в зависимости от конкретного района полуострова. На стоимость квартиры в Крыму влияет множество факторов, назовём основные: • район Крымского полуострова – есть более престижные с точки зрения делового климата, инфраструктуры и иных показателей качества жизни города и посёлки, в них квартиры, разумеется, стоят дороже; • близость к морю – в курортных районах с благоприятным климатом этот параметр является критически важным, несмотря на то что, согласно распространённому мнению, местные жители на море ходят раз в десять реже, чем приезжие; • инфраструктура конкретного микрорайона и/или МКД – близость социальных объектов (школы, детские садики, поликлиники и т. д.), магазинов, сервисных компаний, остановок общественного транспорта, парковок, рекреационных зон; • планировка квартиры, архитектурные особенности здания, этаж, вид из окна и другие параметры конкретного жилья; • наличие отделки и качество отделочных материалов в тех случаях, когда она присутствует, самыми дорогими квартирами будут варианты с отделкой, установленной сантехникой и кухонным оборудованием. Ищете новостройки Крыма, цена на квартиры в которых не повергнет Вас в шок и позволит совершить переезд на выгодных условиях? Обращайтесь в агентство FLЭTHOUSE! Мы подберём для Вас квартиру с учётом индивидуальных требований и бюджета!

Решили купить квартиру в Крыму? Новострой – лучший вариант!

Почему квартира в новостройке лучше, чем купленная на вторичном рынке, хоть и дороже? • Вы являетесь первым владельцем квартиры, что гарантирует отсутствие повреждений отделки и конструктивных элементов предыдущими жильцами. Следовательно, в процессе эксплуатации жилого помещения не будет неприятных сюрпризов, которые могут не только омрачить жизнь, но и заметно ударить по кошельку. • Инженерные коммуникации в новостройке – совершенно новые, следовательно, о замене водопровода, канализации, электропроводки и т. д. можно будет не вспоминать как минимум лет 10-15, а то и дольше. • Застройщики предлагают в новостройках квартиры с современными планировками, причём часто можно найти не самые стандартные варианты, следовательно, подобрать жильё, полностью отвечающее и Вашим требованиям, и современным архитектурным трендам на первичке проще, чем на вторичном рынке. • При строительстве новостроек, как правило, применяются инновационные технологии и материалы новейшего поколения, что позволяет повысить характеристики энергоэффективности, теплоизоляции и т. д. Продажа квартир в новостройках – одно из основных направлений нашей деятельности. Мы всегда в курсе, на какие даты назначен старт продажи новостроек в Крыму, поэтому готовы предложить Вам минимальные цены на квартиры, которые можно поймать на этапе котлована, готовы помочь с выбором между несколькими предложениями, купить новостройку в Крыму у моря без переплат. Агентство FLЭTHOUSE работает на рынке новостроек Крыма уже более десяти лет, через нас приобрели новые квартиры более восьми сотен человек – мы знаем все тонкости как профессионального, так и регионального рынка и готовы плотно сопровождать каждого клиента на протяжении всего процесса заключения сделки. С нашим специалистом Вы пройдёте вместе все этапы покупки: от выбора квартиры по каталогу и её визуального осмотра (если продаётся уже готовый объект, а если нет – осмотра места строительства) до передачи ключей перед заселением. Мы поможем сэкономить Вам двести-триста тысяч рублей в сравнении с покупкой квартиры напрямую или в ином агентстве, а также подскажем, как снизить ставку ипотечного кредита для максимальной экономии Вашего семейного бюджета. Позвоните нам прямо сейчас и скажите нашему менеджеру: «Куплю квартиру в новостройке. Подберите мне лучший вариант!»

FLЭTHOUSE